145 South St, Yarmouth, MA 02664
Toggle Navigation
Images
Videos
Floor Plans
3D Tour
Map
Previous Photo
Next Photo
Images
Slideshow
Photo Grid
Hide
Previous
Next
Show more
Videos
Social Media Video #1
Property Video #1
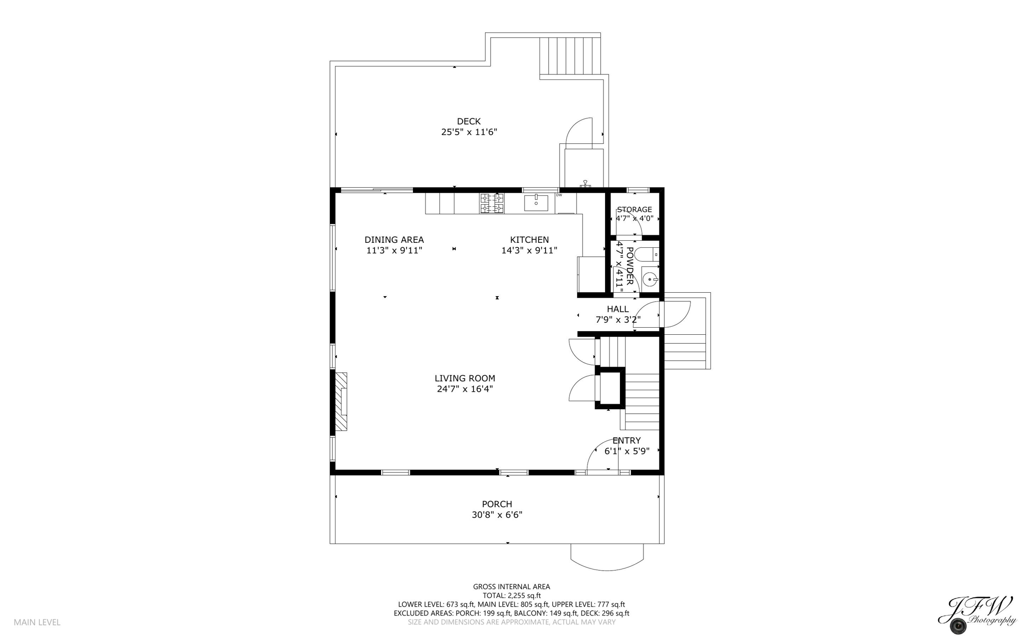
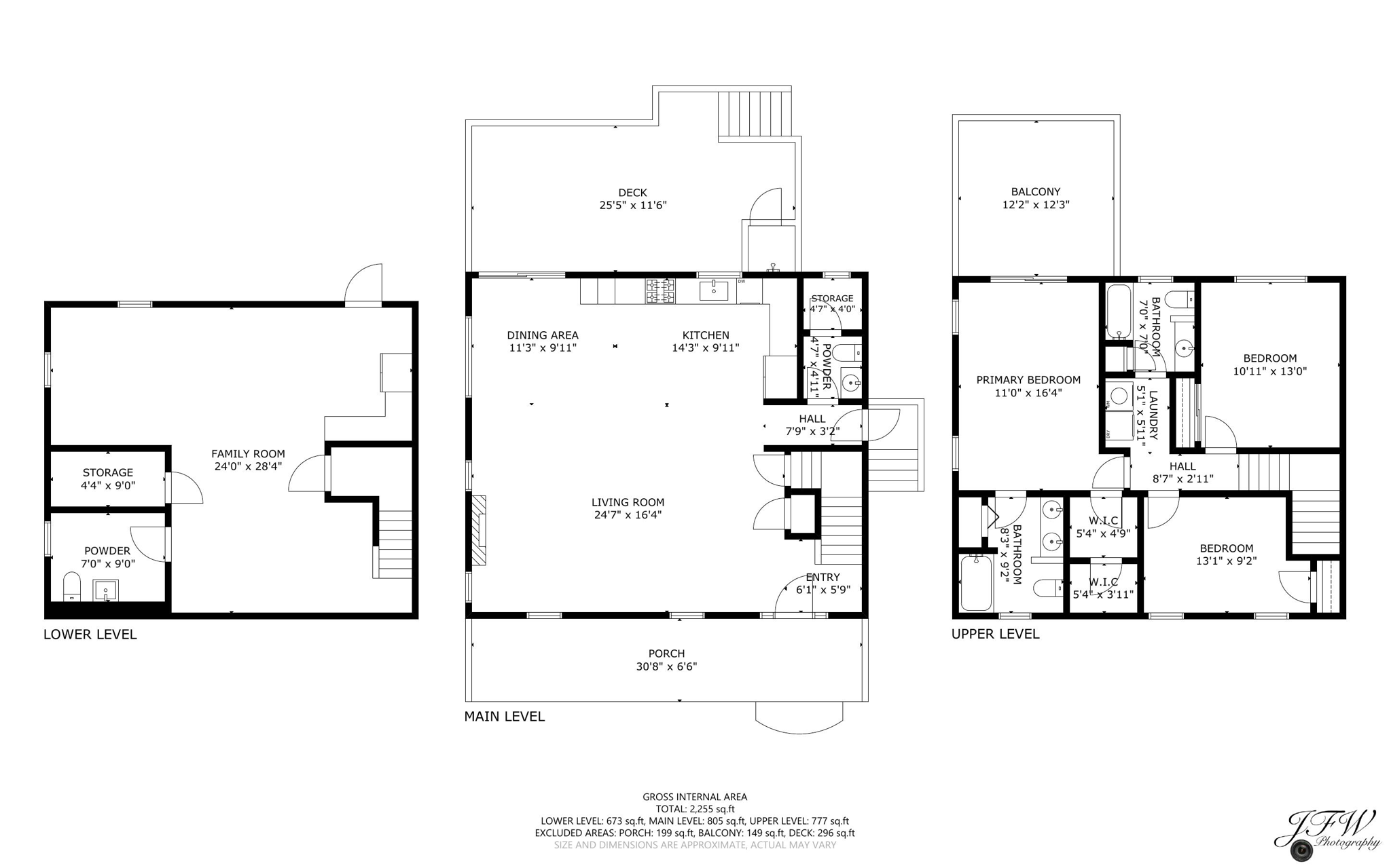
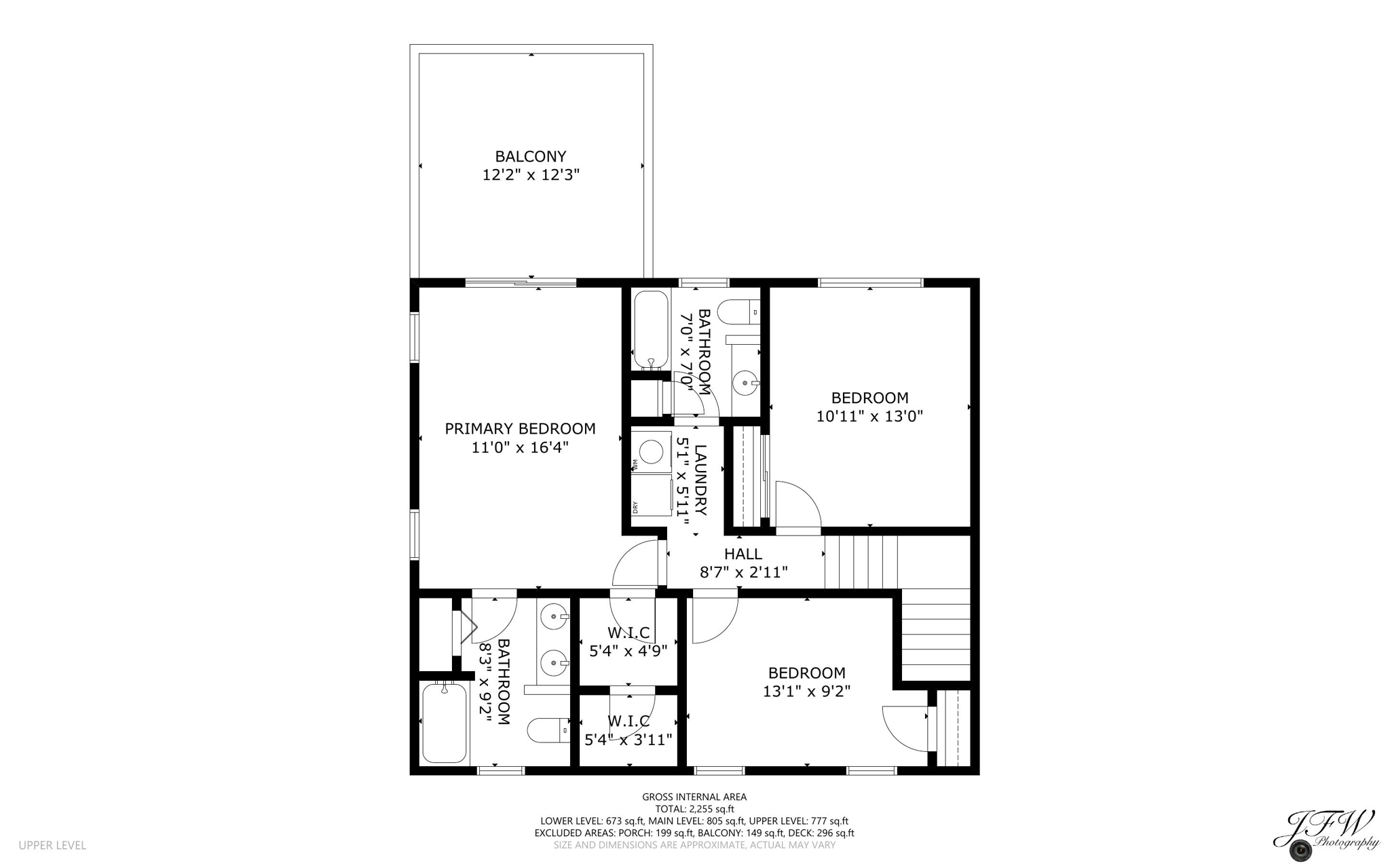
Floor Plans
Slideshow
Photo Grid
Hide
Previous
Next
3D Tour
Content Coming Soon